Top.Mail.Ru

проспект Маршала Жукова, д. 21

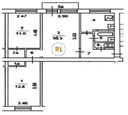
База каталог, Кол-во подъездов: 4, Имеется, I-511, Москва, Хорошево-Мневники, Площадь парковки: 393, Пассажирский лифт: 0, От метро: 100, Северо-Западный, да, Наименьшее кол-во этажей: 5, Наибольшее кол-во этажей: 5, Народное Ополчение, Кол-во помещений: 84, Кол-во нежилых помещений: 5, Год ввода в эксплуатацию: 1960, 3-комн, Кол-во жилых помещений: 79, Не присвоен, дом 21, да, да, да, да, да, да, Имеется, Грузовых лифтов: 0, Год постройки: 1960, проспект Маршала Жукова, 37.487092, 55.775287
Свяжитесь со мной на счет цены
10 дн.
T55S775287L37S487092T

На карте


Условия сделки

Источник


Старт продаж

Возможно заинтересует