Top.Mail.Ru

Челябинская ул., д. 4, к. 1

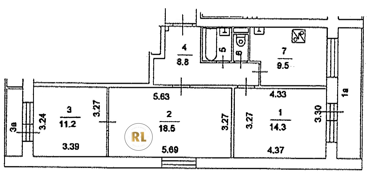
База каталог, Кол-во подъездов: 1, И-209А, Москва, Ивановское, Площадь парковки: 0, Пассажирский лифт: 2, От метро: 2950, Восточный, нет, Наименьшее кол-во этажей: 14, Наибольшее кол-во этажей: 14, Новогиреево, Кол-во помещений: 98, Кол-во нежилых помещений: 0, Год ввода в эксплуатацию: 1975, 3-комн, Кол-во жилых помещений: 98, Не присвоен, дом 4, корпус 1, нет, да, нет, нет, нет, нет, Грузовых лифтов: 0, Год постройки: 1975, Челябинская улица, 37.822514, 55.775479
Свяжитесь со мной на счет цены
10 дн.
T55S775479L37S822514T

На карте


Условия сделки

Источник


Старт продаж

Возможно заинтересует