Top.Mail.Ru

Хорошевское шоссе, д. 19

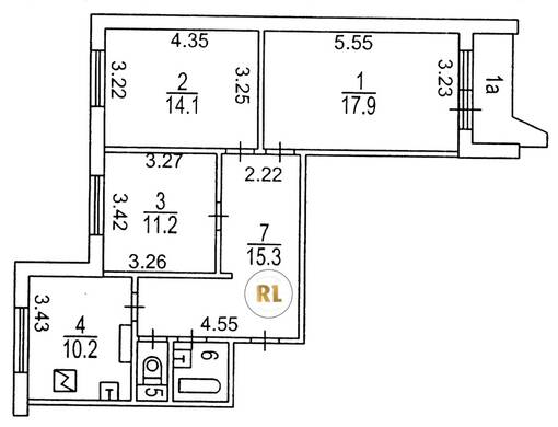
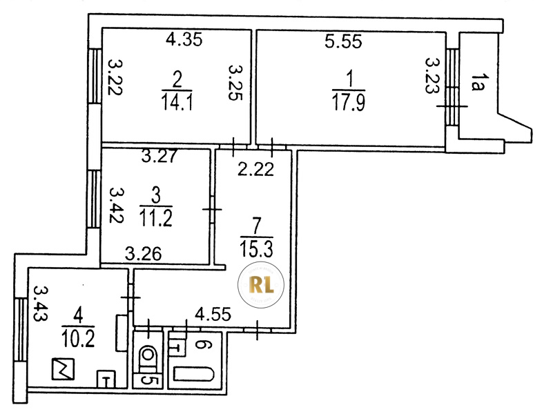
База каталог, Кол-во подъездов: 2, Отсутствует, П-44, Москва, Хорошевский, Площадь парковки: 0, Пассажирский лифт: 2, От метро: 760, Северный, нет, Наименьшее кол-во этажей: 17, Наибольшее кол-во этажей: 17, Полежаевская, Кол-во помещений: 137, Кол-во нежилых помещений: 2, Год ввода в эксплуатацию: 1988, 3-комн, Кол-во жилых помещений: 135, Не присвоен, дом 19, нет, да, да, да, да, да, Отсутствует, Грузовых лифтов: 2, Год постройки: 1988, Хорошевское шоссе, 37.530723, 55.775489
Свяжитесь со мной на счет цены
10 дн.
T55S775489L37S530723T

На карте


Условия сделки

Источник


Старт продаж

Возможно заинтересует