Top.Mail.Ru

Спартаковский переулок, д. 26

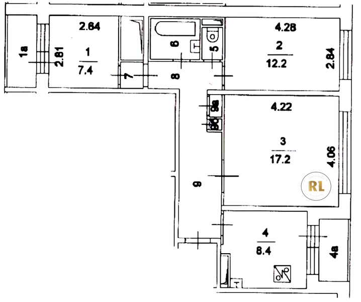
База каталог, Кол-во нежилых помещений: 6, П-30, Москва, Басманный, Пассажирский лифт: 4, От метро: 590, Центральный, да, Наименьшее кол-во этажей: 12, Наибольшее кол-во этажей: 12, Бауманская, Кол-во помещений: 99, Кол-во подъездов: 2, 3-комн, Год ввода в эксплуатацию: 1982, Кол-во жилых помещений: 93, Не присвоен, дом 26, да, да, да, да, да, да, Имеется, Грузовых лифтов: 0, Год постройки: 1982, Спартаковский переулок, 37.681640, 55.775555
Свяжитесь со мной на счет цены
10 дн.
T55S775555L37S681640T

На карте


Условия сделки

Источник


Старт продаж

Возможно заинтересует