Top.Mail.Ru

Хорошевское шоссе, д. 17

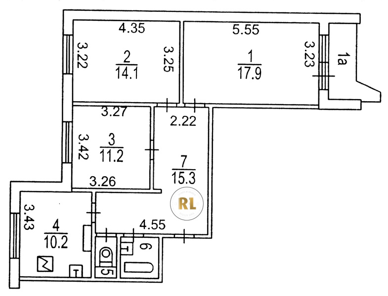
База каталог, Кол-во подъездов: 4, Отсутствует, П-44, Москва, Хорошевский, Площадь парковки: 0, Пассажирский лифт: 4, От метро: 780, Северный, нет, Наименьшее кол-во этажей: 17, Наибольшее кол-во этажей: 17, Полежаевская, Кол-во помещений: 258, Кол-во нежилых помещений: 2, Год ввода в эксплуатацию: 1988, 3-комн, Кол-во жилых помещений: 256, Не присвоен, дом 17, нет, да, да, да, да, да, Отсутствует, Грузовых лифтов: 4, Год постройки: 1988, Хорошевское шоссе, 37.531693, 55.775854
Свяжитесь со мной на счет цены
10 дн.
T55S775854L37S531693T

На карте


Условия сделки

Источник


Старт продаж

Возможно заинтересует