Top.Mail.Ru

Беговая ул., д. 6

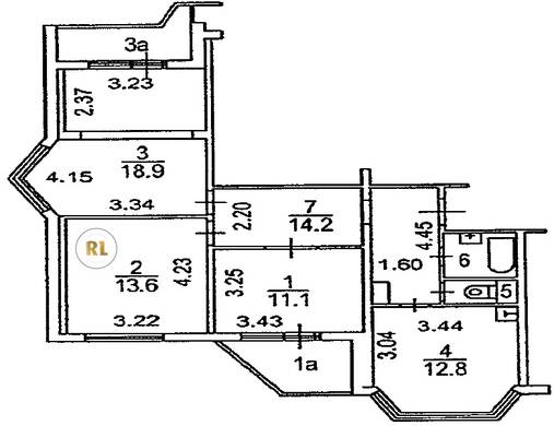
База каталог, Кол-во помещений: 93, П-44T, Москва, Беговой, Площадь парковки: 0, Пассажирский лифт: 2, От метро: 640, Северный, нет, Наименьшее кол-во этажей: 12, Наибольшее кол-во этажей: 12, Беговая, Кол-во подъездов: 2, Год ввода в эксплуатацию: 2000, Кол-во нежилых помещений: 5, 3-комн, Кол-во жилых помещений: 88, дом 6, нет, да, да, да, да, да, Грузовых лифтов: 2, Год постройки: 2000, Беговая улица, 37.555732, 55.776244
Свяжитесь со мной на счет цены
10 дн.
T55S776244L37S555732T

На карте


Условия сделки

Источник


Старт продаж

Возможно заинтересует