Top.Mail.Ru

проспект Маршала Жукова, д. 16, к. 3

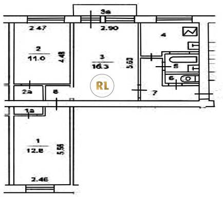
База каталог, Кол-во подъездов: 4, Отсутствует, I-511, Москва, Хорошево-Мневники, Площадь парковки: 244,8, Пассажирский лифт: 4, От метро: 500, Северо-Западный, да, Наименьшее кол-во этажей: 7, Наибольшее кол-во этажей: 7, Народное Ополчение, Кол-во помещений: 97, Кол-во нежилых помещений: 1, Год ввода в эксплуатацию: 1963, 3-комн, Кол-во жилых помещений: 96, Не присвоен, дом 16, корпус 3, да, да, да, да, да, да, Имеется, Грузовых лифтов: 0, Год постройки: 1963, проспект Маршала Жукова, 37.492410, 55.776862
Свяжитесь со мной на счет цены
10 дн.
T55S776862L37S492410T

На карте


Условия сделки

Источник


Старт продаж

Возможно заинтересует