Top.Mail.Ru

улица Семеновский Вал, д. 10, к. 2

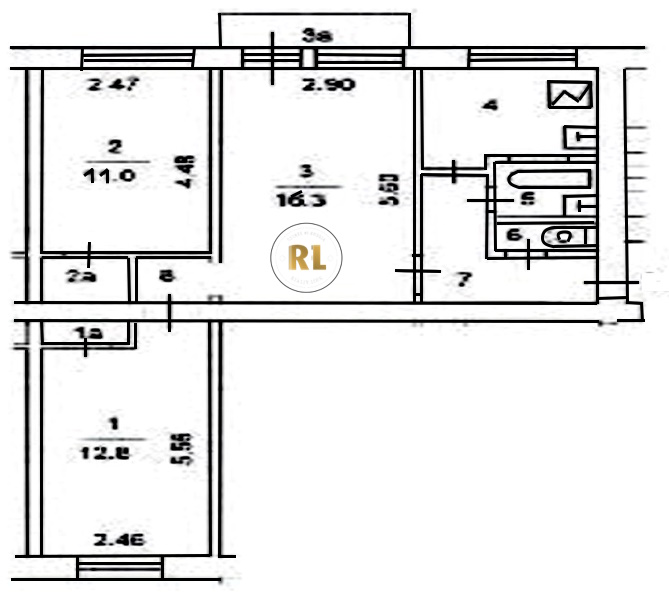
База каталог, Кол-во подъездов: 5, I-511, Москва, Соколиная Гора, Площадь парковки: 0, Пассажирский лифт: 0, От метро: 860, Восточный, нет, Наименьшее кол-во этажей: 5, Наибольшее кол-во этажей: 5, Семёновская, Кол-во помещений: 98, Кол-во нежилых помещений: 1, Год ввода в эксплуатацию: 1961, 3-комн, Кол-во жилых помещений: 97, Не присвоен, дом 10, корпус 2, нет, да, да, да, да, да, Грузовых лифтов: 0, Год постройки: 1961, улица Семеновский Вал, 37.714635, 55.776993
Свяжитесь со мной на счет цены
10 дн.
T55S776993L37S714635T

На карте


Условия сделки

Источник


Старт продаж

Возможно заинтересует