Top.Mail.Ru

проспект Маршала Жукова, д. 8, к. 3

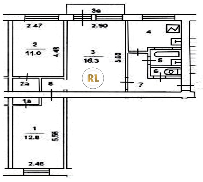
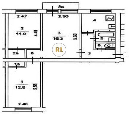
База каталог, Кол-во подъездов: 4, Отсутствует, I-511, Москва, Хорошево-Мневники, Площадь парковки: 0, Пассажирский лифт: 0, От метро: 760, Северо-Западный, нет, Наименьшее кол-во этажей: 5, Наибольшее кол-во этажей: 5, Хорошёво, Кол-во помещений: 98, Кол-во нежилых помещений: 18, Год ввода в эксплуатацию: 1962, 3-комн, Кол-во жилых помещений: 80, Не присвоен, дом 8, корпус 3, нет, да, да, да, да, да, Имеется, Грузовых лифтов: 0, Год постройки: 1962, проспект Маршала Жукова, 37.497234, 55.777039
Свяжитесь со мной на счет цены
10 дн.
T55S777039L37S497234T

На карте


Условия сделки

Источник


Старт продаж

Возможно заинтересует