Top.Mail.Ru

бульвар Генерала Карбышева, д. 2

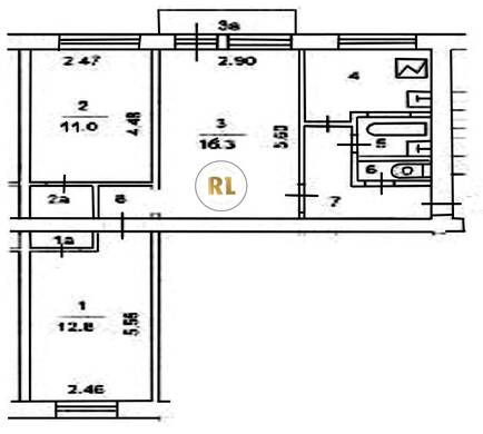
База каталог, Кол-во подъездов: 4, Отсутствует, I-511, Москва, Хорошево-Мневники, Площадь парковки: 0, Пассажирский лифт: 0, От метро: 1020, Северо-Западный, нет, Наименьшее кол-во этажей: 5, Наибольшее кол-во этажей: 5, Народное Ополчение, Кол-во помещений: 81, Кол-во нежилых помещений: 1, Год ввода в эксплуатацию: 1958, 3-комн, Кол-во жилых помещений: 80, Не присвоен, дом 2, нет, да, да, да, да, да, Отсутствует, Грузовых лифтов: 0, Год постройки: 1958, бульвар Генерала Карбышева, 37.469925, 55.777241
Свяжитесь со мной на счет цены
10 дн.
T55S777241L37S469925T

На карте


Условия сделки

Источник


Старт продаж

Возможно заинтересует