Top.Mail.Ru

Скаковая ул., д. 34, к. 1

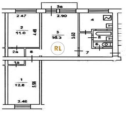
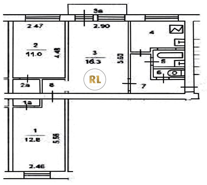
База каталог, Кол-во подъездов: 3, I-511, Москва, Беговой, Пассажирский лифт: 0, От метро: 820, Северный, да, Наименьшее кол-во этажей: 5, Наибольшее кол-во этажей: 5, Белорусская, Кол-во помещений: 60, Кол-во нежилых помещений: 0, Год ввода в эксплуатацию: 1959, 3-комн, Кол-во жилых помещений: 60, дом 34, корпус 1, нет, да, да, да, да, да, Грузовых лифтов: 0, Год постройки: 1959, Скаковая улица, 37.572755, 55.777358
Свяжитесь со мной на счет цены
10 дн.
T55S777358L37S572755T

На карте


Условия сделки

Источник


Старт продаж

Возможно заинтересует