Top.Mail.Ru

Хорошевское шоссе, д. 72, к. 1

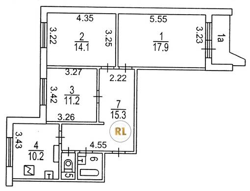
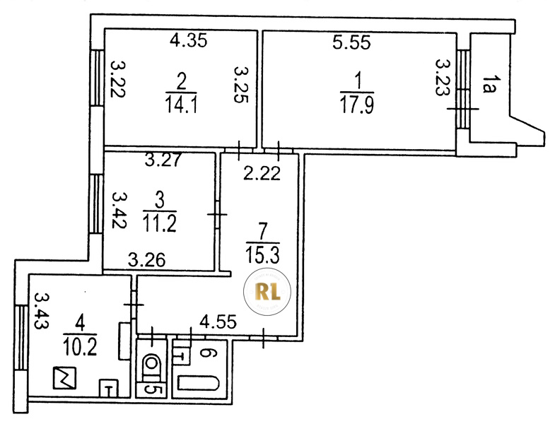
База каталог, Кол-во подъездов: 3, Отсутствует, П-44, Москва, Хорошевский, Площадь парковки: 0, Пассажирский лифт: 3, От метро: 294, Северный, нет, Наименьшее кол-во этажей: 17, Наибольшее кол-во этажей: 17, Полежаевская, Кол-во помещений: 196, Кол-во нежилых помещений: 0, Год ввода в эксплуатацию: 1985, 3-комн, Кол-во жилых помещений: 196, D, дом 72, корпус 1, да, да, да, да, да, да, Отсутствует, Грузовых лифтов: 3, Год постройки: 1985, Хорошевское шоссе, 37.524714, 55.778699
Свяжитесь со мной на счет цены
10 дн.
T55S778699L37S524714T

На карте


Условия сделки

Источник


Старт продаж

Возможно заинтересует