Top.Mail.Ru

Челябинская ул., д. 19, к. 3

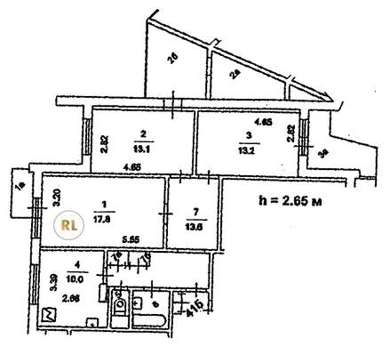
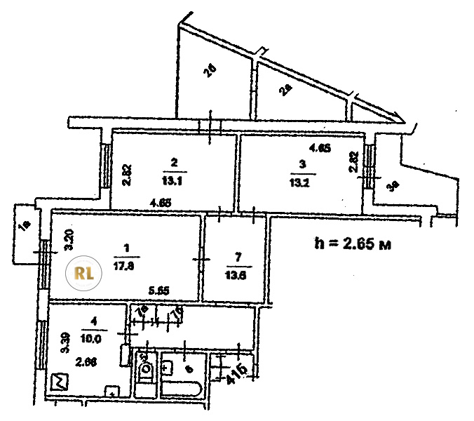
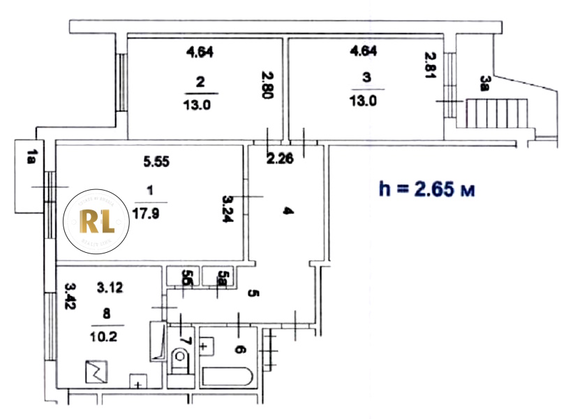
База каталог, Кол-во подъездов: 2, П-3/16, Москва, Ивановское, Площадь парковки: 0, Пассажирский лифт: 2, От метро: 3100, Восточный, нет, Наименьшее кол-во этажей: 16, Наибольшее кол-во этажей: 16, Первомайская, Кол-во помещений: 128, Кол-во нежилых помещений: 1, Год ввода в эксплуатацию: 1978, 3-комн, Кол-во жилых помещений: 127, Не присвоен, дом 19, корпус 3, нет, нет, нет, нет, нет, нет, Грузовых лифтов: 2, Год постройки: 1978, Челябинская улица, 37.828937, 55.779722
Свяжитесь со мной на счет цены
10 дн.
T55S779722L37S828937T

На карте


Условия сделки

Источник


Старт продаж

Возможно заинтересует