Top.Mail.Ru

улица Полины Осипенко, д. 14, к. 1

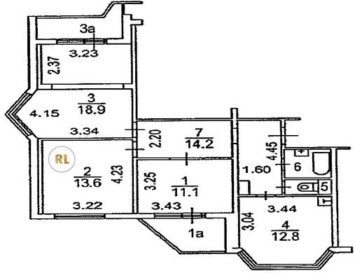
База каталог, Кол-во помещений: 586, Отсутствует, П-44T, Москва, Хорошевский, Площадь парковки: 0, Пассажирский лифт: 9, От метро: 780, Северный, нет, Наименьшее кол-во этажей: 15, Наибольшее кол-во этажей: 17, ЦСКА, Кол-во подъездов: 9, Год ввода в эксплуатацию: 2002, Кол-во нежилых помещений: 0, 3-комн, Кол-во жилых помещений: 586, Не присвоен, дом 14, корпус 1, нет, да, да, да, да, да, Грузовых лифтов: 9, Год постройки: 2002, улица Полины Осипенко, 37.533544, 55.780876
Свяжитесь со мной на счет цены
10 дн.
T55S780876L37S533544T

На карте


Условия сделки

Источник


Старт продаж

Возможно заинтересует