Top.Mail.Ru

улица Куусинена, д. 6, к. 6

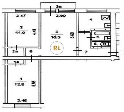
База каталог, Кол-во подъездов: 4, Отсутствует, I-511, Москва, Хорошевский, Площадь парковки: 0, Пассажирский лифт: 0, От метро: 520, Северный, нет, Наименьшее кол-во этажей: 5, Наибольшее кол-во этажей: 5, Полежаевская, Кол-во помещений: 60, Кол-во нежилых помещений: 2, Год ввода в эксплуатацию: 1958, 3-комн, Кол-во жилых помещений: 58, Не присвоен, дом 6, корпус 6, да, да, да, да, да, да, Отсутствует, Грузовых лифтов: 0, Год постройки: 1958, улица Куусинена, 37.517213, 55.781448
Свяжитесь со мной на счет цены
10 дн.
T55S781448L37S517213T

На карте


Условия сделки

Источник


Старт продаж

Возможно заинтересует