Top.Mail.Ru

улица Полины Осипенко, д. 22, к. 3

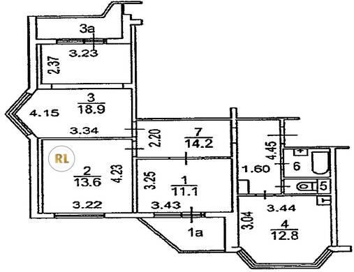
База каталог, Кол-во подъездов: 5, П-44T, Москва, Хорошевский, Площадь парковки: 0, Пассажирский лифт: 5, От метро: 770, Северный, нет, Наименьшее кол-во этажей: 17, Наибольшее кол-во этажей: 17, ЦСКА, Кол-во помещений: 329, Кол-во нежилых помещений: 0, Год ввода в эксплуатацию: 2000, 3-комн, Кол-во жилых помещений: 329, Не присвоен, дом 22, корпус 3, нет, да, да, да, да, да, Грузовых лифтов: 5, Год постройки: 2000, улица Полины Осипенко, 37.527561, 55.782203
Свяжитесь со мной на счет цены
10 дн.
T55S782203L37S527561T

На карте


Условия сделки

Источник


Старт продаж

Возможно заинтересует