Top.Mail.Ru

набережная Новикова-Прибоя, д. 5, к. 2

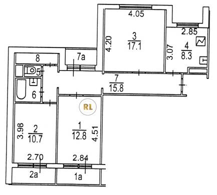
База каталог, Кол-во подъездов: 3, Отсутствует, П-55, Москва, Хорошево-Мневники, Площадь парковки: 28, Пассажирский лифт: 0, От метро: 2950, Северо-Западный, да, Наименьшее кол-во этажей: 7, Наибольшее кол-во этажей: 7, Народное Ополчение, Кол-во помещений: 90, Кол-во нежилых помещений: 18, Год ввода в эксплуатацию: 1991, 3-комн, Кол-во жилых помещений: 72, Не присвоен, дом 5, корпус 2, нет, да, нет, нет, нет, нет, Имеется, Грузовых лифтов: 3, Год постройки: 1991, набережная Новикова-Прибоя, 37.447917, 55.784916
Свяжитесь со мной на счет цены
10 дн.
T55S784916L37S447917T

На карте


Условия сделки

Источник


Старт продаж

Возможно заинтересует