Top.Mail.Ru

улица Гиляровского, д. 48

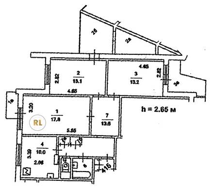
База каталог, Кол-во подъездов: 2, П-3/16, Москва, Мещанский, Площадь парковки: 0, Пассажирский лифт: 2, От метро: 460, Центральный, нет, Наименьшее кол-во этажей: 16, Наибольшее кол-во этажей: 16, Проспект Мира, Кол-во помещений: 129, Кол-во нежилых помещений: 1, Год ввода в эксплуатацию: 1988, 3-комн, Кол-во жилых помещений: 128, Не присвоен, дом 48, да, да, да, да, да, да, Грузовых лифтов: 2, Год постройки: 1988, улица Гиляровского, 37.633266, 55.784946
Свяжитесь со мной на счет цены
10 дн.
T55S784946L37S633266T

На карте


Условия сделки

Источник


Старт продаж

Возможно заинтересует