Top.Mail.Ru

Фортунатовская ул., д. 31А

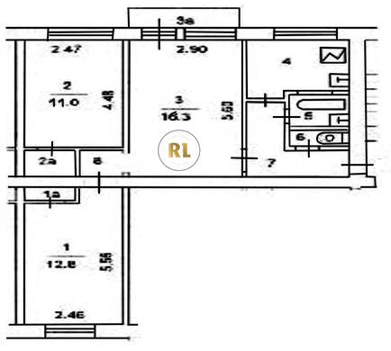
База каталог, Кол-во подъездов: 3, I-511, Москва, Соколиная Гора, Площадь парковки: 0, Пассажирский лифт: 0, От метро: 490, Восточный, нет, Наименьшее кол-во этажей: 5, Наибольшее кол-во этажей: 5, Измайлово, Кол-во помещений: 61, Кол-во нежилых помещений: 1, Год ввода в эксплуатацию: 1962, 3-комн, Кол-во жилых помещений: 60, Не присвоен, дом 31А, да, да, да, да, да, да, Имеется, Грузовых лифтов: 0, Год постройки: 1962, Фортунатовская улица, 37.740615, 55.785660
Свяжитесь со мной на счет цены
10 дн.
T55S785660L37S740615T

На карте


Условия сделки

Источник


Старт продаж

Возможно заинтересует