Top.Mail.Ru

Олимпийский проспект, д. 20

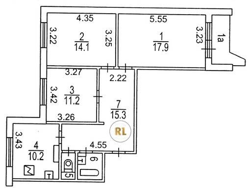
База каталог, Кол-во подъездов: 2, Отсутствует, П-44, Москва, Мещанский, Пассажирский лифт: 2, От метро: 1020, Центральный, да, Наименьшее кол-во этажей: 17, Наибольшее кол-во этажей: 17, Проспект Мира, Кол-во помещений: 129, Кол-во нежилых помещений: 2, Год ввода в эксплуатацию: 1985, 3-комн, Кол-во жилых помещений: 127, дом 20, нет, да, да, да, да, да, Имеется, Грузовых лифтов: 2, Год постройки: 1985, Олимпийский проспект, 37.624274, 55.785873
Свяжитесь со мной на счет цены
10 дн.
T55S785873L37S624274T

На карте


Условия сделки

Источник


Старт продаж

Возможно заинтересует