Top.Mail.Ru

Старослободская ул., д. 23

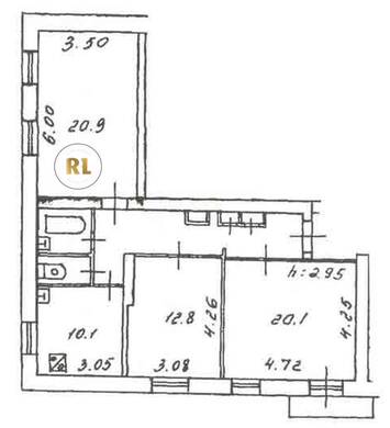
База каталог, Кол-во подъездов: 6, Отсутствует, II-05, Москва, Сокольники, Площадь парковки: 0, Пассажирский лифт: 6, От метро: 550, Восточный, нет, Наименьшее кол-во этажей: 9, Наибольшее кол-во этажей: 9, Сокольники, Кол-во помещений: 215, Кол-во нежилых помещений: 0, Год ввода в эксплуатацию: 1966, 3-комн, Кол-во жилых помещений: 215, Не присвоен, дом 23, да, да, да, да, да, да, Отсутствует, Грузовых лифтов: 0, Год постройки: 1966, Старослободская улица, 37.673097, 55.787740
Свяжитесь со мной на счет цены
10 дн.
T55S787740L37S673097T

На карте


Условия сделки

Источник


Старт продаж

Возможно заинтересует