Top.Mail.Ru

набережная Новикова-Прибоя, д. 9, к. 2

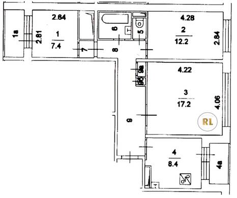
База каталог, Кол-во подъездов: 3, Отсутствует, П-30, Москва, Хорошево-Мневники, Площадь парковки: 192, Пассажирский лифт: 3, От метро: 3100, Северо-Западный, да, Наименьшее кол-во этажей: 7, Наибольшее кол-во этажей: 7, Щукинская, Кол-во помещений: 88, Кол-во нежилых помещений: 16, Год ввода в эксплуатацию: 1988, 3-комн, Кол-во жилых помещений: 72, Не присвоен, дом 9, корпус 2, нет, нет, нет, нет, нет, нет, Имеется, Грузовых лифтов: 0, Год постройки: 1988, набережная Новикова-Прибоя, 37.447943, 55.787923
Свяжитесь со мной на счет цены
10 дн.
T55S787923L37S447943T

На карте


Условия сделки

Источник


Старт продаж

Возможно заинтересует