Top.Mail.Ru

улица Василия Ботылева, д. 14

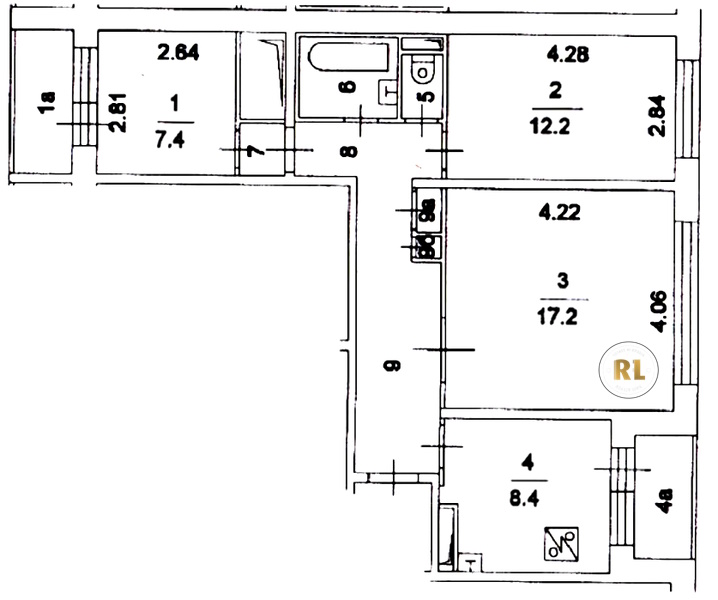
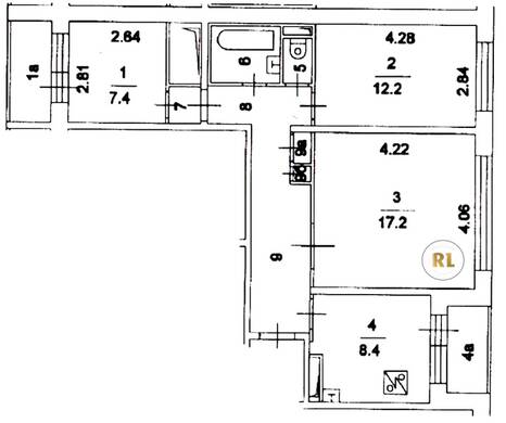
База каталог, Кол-во подъездов: 4, Отсутствует, П-30, Москва, Кунцево, Площадь парковки: 839, Пассажирский лифт: 4, От метро: 4400, Западный, да, Наименьшее кол-во этажей: 14, Наибольшее кол-во этажей: 14, Строгино, Кол-во помещений: 0, Кол-во нежилых помещений: 0, Год ввода в эксплуатацию: 1990, 3-комн, Кол-во жилых помещений: 0, Не присвоен, дом 14, нет, нет, нет, нет, нет, нет, Имеется, Грузовых лифтов: 4, Год постройки: 1990, улица Василия Ботылева, 37.356827, 55.788171
Свяжитесь со мной на счет цены
10 дн.
T55S788171L37S356827T

На карте


Условия сделки

Источник


Старт продаж

Возможно заинтересует