Top.Mail.Ru

Мироновская ул., д. 26

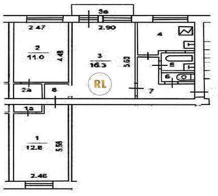
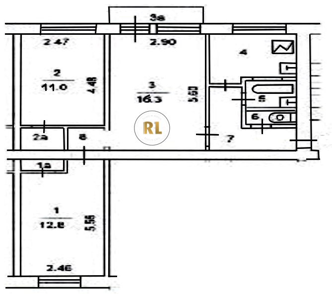
База каталог, Кол-во нежилых помещений: 2, I-511, Москва, Соколиная Гора, Пассажирский лифт: 0, От метро: 850, Восточный, да, Наименьшее кол-во этажей: 5, Наибольшее кол-во этажей: 5, Измайлово, Кол-во помещений: 62, Кол-во подъездов: 3, 3-комн, Год ввода в эксплуатацию: 1961, Кол-во жилых помещений: 60, Не присвоен, дом 26, нет, да, да, да, да, да, Имеется, Грузовых лифтов: 0, Год постройки: 1961, Мироновская улица, 37.733266, 55.788343
Свяжитесь со мной на счет цены
10 дн.
T55S788343L37S733266T

На карте


Условия сделки

Источник


Старт продаж

Возможно заинтересует