Top.Mail.Ru

улица Шумкина, д. 15

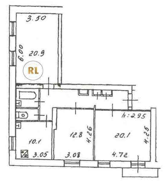
База каталог, Кол-во подъездов: 3, Отсутствует, II-05, Москва, Сокольники, Площадь парковки: 0, Пассажирский лифт: 3, От метро: 720, Восточный, нет, Наименьшее кол-во этажей: 0, Наибольшее кол-во этажей: 9, Сокольники, Кол-во помещений: 108, Кол-во нежилых помещений: 1, Год ввода в эксплуатацию: 1965, 3-комн, Кол-во жилых помещений: 107, Не присвоен, дом 15, нет, да, да, да, да, да, Отсутствует, Грузовых лифтов: 0, Год постройки: 1965, улица Шумкина, 37.670214, 55.788520
Свяжитесь со мной на счет цены
10 дн.
T55S788520L37S670214T

На карте


Условия сделки

Источник


Старт продаж

Возможно заинтересует