Top.Mail.Ru

Новосущевская ул., д. 37, к. 4

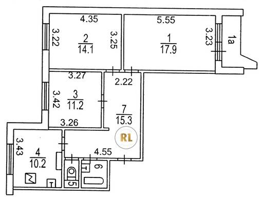
База каталог, Кол-во подъездов: 2, П-44, Москва, Марьина Роща, Площадь парковки: 2780, Пассажирский лифт: 2, От метро: 1050, Северо-Восточный, да, Наименьшее кол-во этажей: 1, Наибольшее кол-во этажей: 17, Менделеевская, Кол-во помещений: 128, Кол-во нежилых помещений: 0, Год ввода в эксплуатацию: 1993, 3-комн, Кол-во жилых помещений: 128, дом 37, корпус 4, нет, да, да, да, да, да, Имеется, Грузовых лифтов: 2, Год постройки: 1993, Новосущевская улица, 37.603271, 55.788682
Свяжитесь со мной на счет цены
10 дн.
T55S788682L37S603271T

На карте


Условия сделки

Источник


Старт продаж

Возможно заинтересует