Top.Mail.Ru

Мироновская ул., д. 28

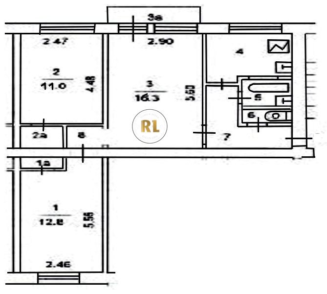
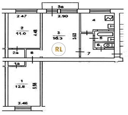
База каталог, Кол-во подъездов: 3, I-511, Москва, Соколиная Гора, Площадь парковки: 0, Пассажирский лифт: 0, От метро: 940, Восточный, нет, Наименьшее кол-во этажей: 5, Наибольшее кол-во этажей: 5, Измайлово, Кол-во помещений: 62, Кол-во нежилых помещений: 2, Год ввода в эксплуатацию: 1964, 3-комн, Кол-во жилых помещений: 60, Не присвоен, дом 28, нет, да, да, да, да, да, Имеется, Грузовых лифтов: 0, Год постройки: 1964, Мироновская улица, 37.733698, 55.788869
Свяжитесь со мной на счет цены
10 дн.
T55S788869L37S733698T

На карте


Условия сделки

Источник


Старт продаж

Возможно заинтересует