Top.Mail.Ru

Измайловский проспект, д. 123/1, к. 1

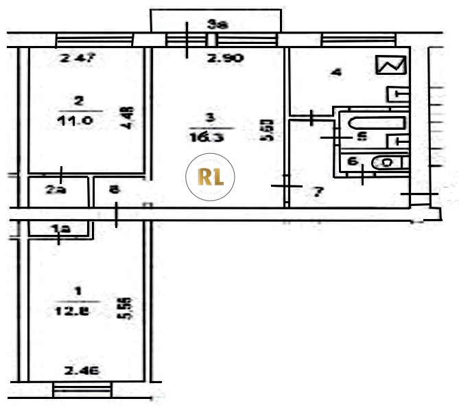
База каталог, Кол-во нежилых помещений: 0, I-511, Москва, Восточное Измайлово, Пассажирский лифт: 0, От метро: 1590, Восточный, да, Наименьшее кол-во этажей: 5, Наибольшее кол-во этажей: 5, Первомайская, Кол-во помещений: 54, Кол-во подъездов: 3, 3-комн, Год ввода в эксплуатацию: 1962, Кол-во жилых помещений: 54, Не присвоен, дом 123/1, корпус 1, нет, да, да, да, да, нет, Имеется, Грузовых лифтов: 0, Год постройки: 1962, Измайловский проспект, 37.818148, 55.789244
Свяжитесь со мной на счет цены
10 дн.
T55S789244L37S818148T

На карте


Условия сделки

Источник


Старт продаж

Возможно заинтересует