Top.Mail.Ru

улица Шумкина, д. 9

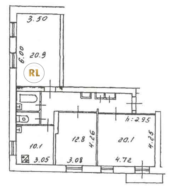
База каталог, Кол-во подъездов: 3, Отсутствует, II-05, Москва, Сокольники, Площадь парковки: 0, Пассажирский лифт: 0, От метро: 830, Восточный, нет, Наименьшее кол-во этажей: 0, Наибольшее кол-во этажей: 5, Сокольники, Кол-во помещений: 66, Кол-во нежилых помещений: 7, Год ввода в эксплуатацию: 1962, 3-комн, Кол-во жилых помещений: 59, Не присвоен, дом 9, нет, да, да, да, да, да, Отсутствует, Грузовых лифтов: 0, Год постройки: 1962, улица Шумкина, 37.668219, 55.789492
Свяжитесь со мной на счет цены
10 дн.
T55S789492L37S668219T

На карте


Условия сделки

Источник


Старт продаж

Возможно заинтересует