Top.Mail.Ru

улица Шумкина, д. 7

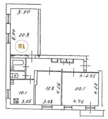
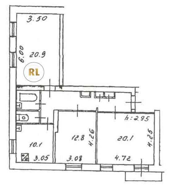
База каталог, Кол-во подъездов: 3, Отсутствует, II-05, Москва, Сокольники, Площадь парковки: 0, Пассажирский лифт: 3, От метро: 850, Восточный, нет, Наименьшее кол-во этажей: 0, Наибольшее кол-во этажей: 9, Сокольники, Кол-во помещений: 90, Кол-во нежилых помещений: 1, Год ввода в эксплуатацию: 1986, 3-комн, Кол-во жилых помещений: 89, Не присвоен, дом 7, нет, да, да, да, да, да, Отсутствует, Грузовых лифтов: 3, Год постройки: 1986, улица Шумкина, 37.667393, 55.789790
Свяжитесь со мной на счет цены
10 дн.
T55S789790L37S667393T

На карте


Условия сделки

Источник


Старт продаж

Возможно заинтересует