Top.Mail.Ru

Лечебная ул., д. 14

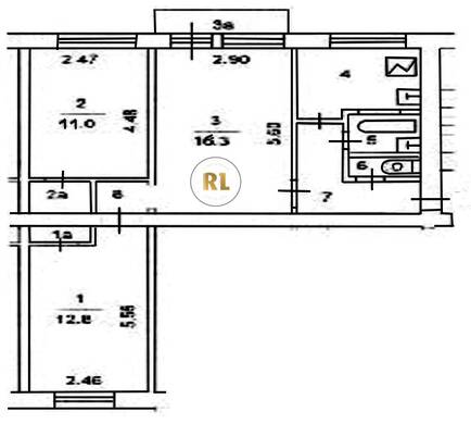
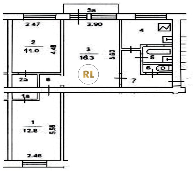
База каталог, Кол-во подъездов: 4, I-511, Москва, Соколиная Гора, Пассажирский лифт: 0, От метро: 520, Восточный, да, Наименьшее кол-во этажей: 5, Наибольшее кол-во этажей: 5, Измайлово, Кол-во помещений: 70, Кол-во нежилых помещений: 1, Год ввода в эксплуатацию: 1962, 3-комн, Кол-во жилых помещений: 69, дом 14, да, да, да, да, да, да, Грузовых лифтов: 0, Год постройки: 1962, Лечебная улица, 37.737273, 55.789988
Свяжитесь со мной на счет цены
10 дн.
T55S789988L37S737273T

На карте


Условия сделки

Источник


Старт продаж

Возможно заинтересует