Top.Mail.Ru

улица Маршала Бирюзова, д. 3

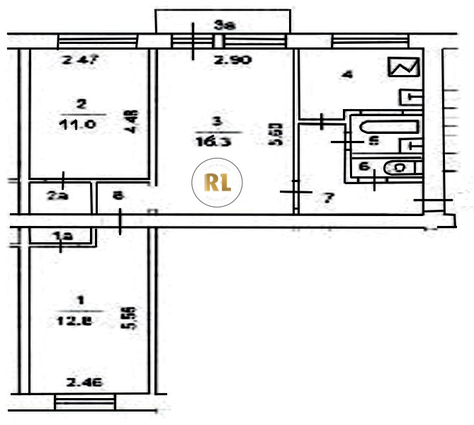
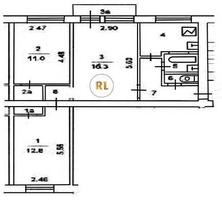
База каталог, Кол-во подъездов: 4, Отсутствует, I-511, Москва, Щукино, Площадь парковки: 0, Пассажирский лифт: 0, От метро: 390, Северо-Западный, нет, Наименьшее кол-во этажей: 5, Наибольшее кол-во этажей: 5, Октябрьское Поле, Кол-во помещений: 71, Кол-во нежилых помещений: 0, Год ввода в эксплуатацию: 1961, 3-комн, Кол-во жилых помещений: 71, Не присвоен, дом 3, да, да, да, да, да, да, Имеется, Грузовых лифтов: 0, Год постройки: 1961, улица Маршала Бирюзова, 37.498716, 55.790367
Свяжитесь со мной на счет цены
10 дн.
T55S790367L37S498716T

На карте


Условия сделки

Источник


Старт продаж

Возможно заинтересует