Top.Mail.Ru

3-я Парковая ул., д. 7/17

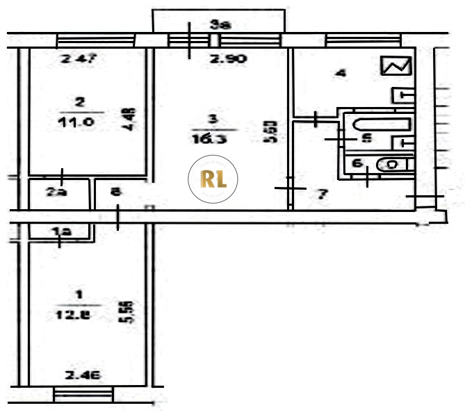
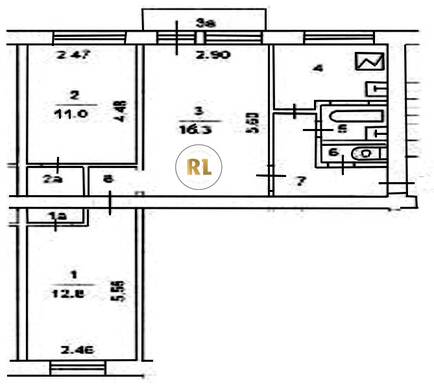
База каталог, Кол-во подъездов: 5, I-511, Москва, Измайлово, Пассажирский лифт: 0, От метро: 350, Восточный, да, Наименьшее кол-во этажей: 5, Наибольшее кол-во этажей: 5, Измайловская, Кол-во помещений: 92, Кол-во нежилых помещений: 5, Год ввода в эксплуатацию: 1965, 3-комн, Кол-во жилых помещений: 87, дом 7/17, да, да, да, да, да, да, Грузовых лифтов: 0, Год постройки: 1965, 3-я Парковая улица, 37.783653, 55.790418
Свяжитесь со мной на счет цены
10 дн.
T55S790418L37S783653T

На карте


Условия сделки

Источник


Старт продаж

Возможно заинтересует