Top.Mail.Ru

2-я Парковая ул., д. 13

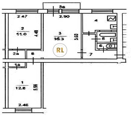
База каталог, Кол-во подъездов: 4, I-511, Москва, Измайлово, Пассажирский лифт: 0, От метро: 420, Восточный, да, Наименьшее кол-во этажей: 5, Наибольшее кол-во этажей: 5, Измайловская, Кол-во помещений: 79, Кол-во нежилых помещений: 3, Год ввода в эксплуатацию: 1962, 3-комн, Кол-во жилых помещений: 76, D, дом 13, да, да, да, да, да, да, Грузовых лифтов: 0, Год постройки: 1962, 2-я Парковая улица, 37.780024, 55.791132
Свяжитесь со мной на счет цены
10 дн.
T55S791132L37S780024T

На карте


Условия сделки

Источник


Старт продаж

Возможно заинтересует