Top.Mail.Ru

Мироновская ул., д. 44А

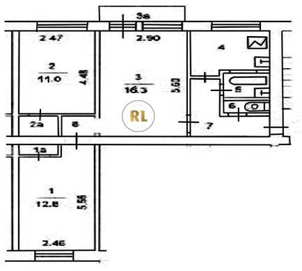
База каталог, Кол-во подъездов: 1, I-511, Москва, Соколиная Гора, Площадь парковки: 0, Пассажирский лифт: 0, От метро: 880, Восточный, нет, Наименьшее кол-во этажей: 4, Наибольшее кол-во этажей: 4, Измайлово, Кол-во помещений: 17, Кол-во нежилых помещений: 1, Год ввода в эксплуатацию: 1956, 3-комн, Кол-во жилых помещений: 16, Не присвоен, дом 44А, нет, да, да, да, да, да, Имеется, Грузовых лифтов: 0, Год постройки: 1956, Мироновская улица, 37.734165, 55.791339
Свяжитесь со мной на счет цены
10 дн.
T55S791339L37S734165T

На карте


Условия сделки

Источник


Старт продаж

Возможно заинтересует