Top.Mail.Ru

6-я Парковая ул., д. 12

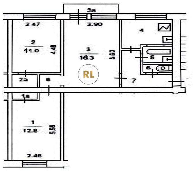
База каталог, Кол-во подъездов: 4, I-511-4/М22БН, Москва, Измайлово, Пассажирский лифт: 0, От метро: 700, Восточный, да, Наименьшее кол-во этажей: 5, Наибольшее кол-во этажей: 5, Первомайская, Кол-во помещений: 82, Кол-во нежилых помещений: 2, Год ввода в эксплуатацию: 1962, 3-комн, Кол-во жилых помещений: 80, дом 12, нет, да, да, да, да, да, Грузовых лифтов: 0, Год постройки: 1962, 6-я Парковая улица, 37.791109, 55.791592
Свяжитесь со мной на счет цены
10 дн.
T55S791592L37S791109T

На карте


Условия сделки

Источник


Старт продаж

Возможно заинтересует