Top.Mail.Ru

Живописная ул., д. 30, к. 4

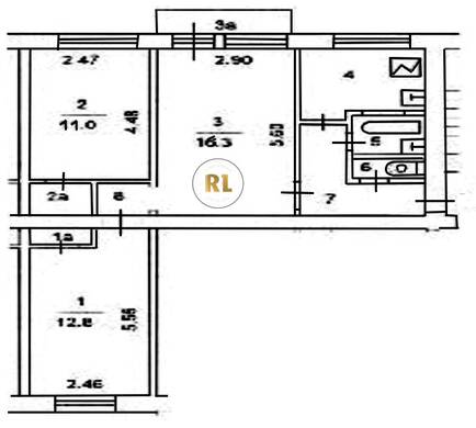
База каталог, Кол-во подъездов: 3, Отсутствует, I-511, Москва, Щукино, Площадь парковки: 0, Пассажирский лифт: 0, От метро: 2400, Северо-Западный, нет, Наименьшее кол-во этажей: 5, Наибольшее кол-во этажей: 5, Щукинская, Кол-во помещений: 60, Кол-во нежилых помещений: 0, Год ввода в эксплуатацию: 1965, 3-комн, Кол-во жилых помещений: 60, Не присвоен, дом 30, корпус 4, нет, да, да, нет, нет, нет, Отсутствует, Грузовых лифтов: 0, Год постройки: 1965, Живописная улица, 37.457232, 55.791881
Свяжитесь со мной на счет цены
10 дн.
T55S791881L37S457232T

На карте


Условия сделки

Источник


Старт продаж

Возможно заинтересует