Top.Mail.Ru

9-я Парковая ул., д. 14А

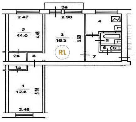
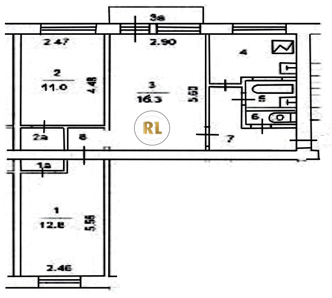
База каталог, Кол-во подъездов: 2, I-511, Москва, Восточное Измайлово, Площадь парковки: 0, Пассажирский лифт: 0, От метро: 267, Восточный, нет, Наименьшее кол-во этажей: 1, Наибольшее кол-во этажей: 5, Первомайская, Кол-во помещений: 70, Кол-во нежилых помещений: 0, Год ввода в эксплуатацию: 1963, 3-комн, Кол-во жилых помещений: 70, Не присвоен, дом 14А, да, да, да, да, да, да, Имеется, Грузовых лифтов: 0, Год постройки: 1963, 9-я Парковая улица, 37.800505, 55.791896
Свяжитесь со мной на счет цены
10 дн.
T55S791896L37S800505T

На карте


Условия сделки

Источник


Старт продаж

Возможно заинтересует