Top.Mail.Ru

Измайловская площадь, д. 1

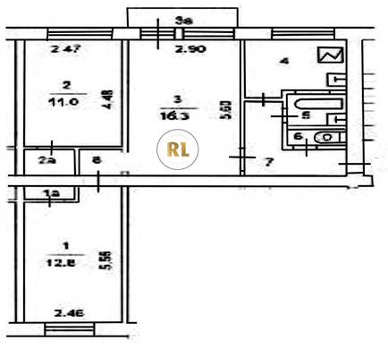
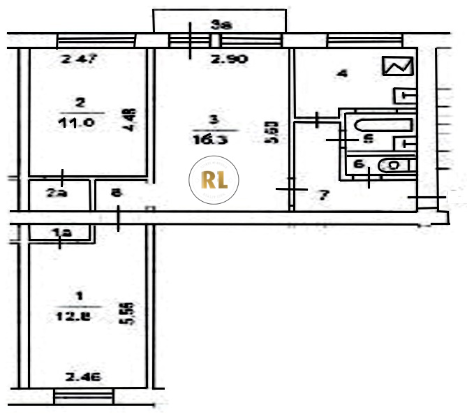
База каталог, Кол-во подъездов: 4, I-511, Москва, Измайлово, Площадь парковки: 0, Пассажирский лифт: 0, От метро: 670, Восточный, нет, Наименьшее кол-во этажей: 5, Наибольшее кол-во этажей: 5, Измайловская, Кол-во помещений: 66, Кол-во нежилых помещений: 1, Год ввода в эксплуатацию: 1964, 3-комн, Кол-во жилых помещений: 65, D, дом 1, нет, да, да, да, да, да, Грузовых лифтов: 0, Год постройки: 1964, Измайловская площадь, 37.775137, 55.792022
Свяжитесь со мной на счет цены
10 дн.
T55S792022L37S775137T

На карте


Условия сделки

Источник


Старт продаж

Возможно заинтересует