Top.Mail.Ru

Нижняя Первомайская ул., д. 53

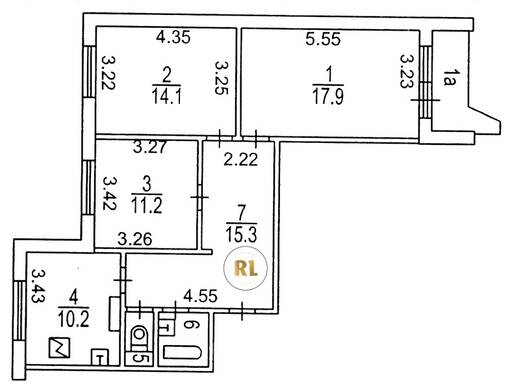
База каталог, Кол-во подъездов: 6, П-44, Москва, Восточное Измайлово, Площадь парковки: 0, Пассажирский лифт: 6, От метро: 950, Восточный, нет, Наименьшее кол-во этажей: 1, Наибольшее кол-во этажей: 17, Первомайская, Кол-во помещений: 815, Кол-во нежилых помещений: 3, Год ввода в эксплуатацию: 1983, 3-комн, Кол-во жилых помещений: 812, Не присвоен, дом 53, нет, да, да, да, да, да, Грузовых лифтов: 6, Год постройки: 1983, Нижняя Первомайская улица, 37.812498, 55.792301
21 300 000 Р
10 дн.
T55S792301L37S812498T
+

На карте


Условия сделки

Источник


Старт продаж

Возможно заинтересует