Top.Mail.Ru

Нижняя Первомайская ул., д. 59

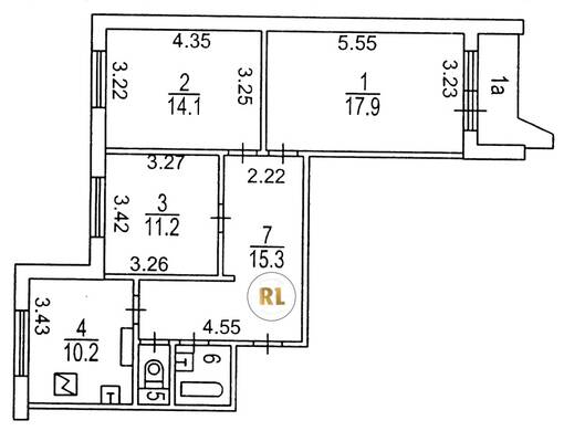
База каталог, Кол-во подъездов: 6, П-44/16, Москва, Восточное Измайлово, Площадь парковки: 0, Пассажирский лифт: 6, От метро: 1280, Восточный, нет, Наименьшее кол-во этажей: 1, Наибольшее кол-во этажей: 17, Первомайская, Кол-во помещений: 407, Кол-во нежилых помещений: 1, Год ввода в эксплуатацию: 1984, 3-комн, Кол-во жилых помещений: 406, Не присвоен, дом 59, нет, да, да, да, да, нет, Грузовых лифтов: 6, Год постройки: 1984, Нижняя Первомайская улица, 37.816989, 55.792372
Свяжитесь со мной на счет цены
10 дн.
T55S792372L37S816989T

На карте


Условия сделки

Источник


Старт продаж

Возможно заинтересует