Top.Mail.Ru

Егерская ул., д. 1

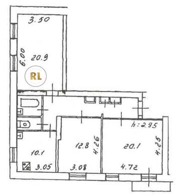
База каталог, Кол-во подъездов: 2, Отсутствует, II-05, Москва, Сокольники, Площадь парковки: 0, Пассажирский лифт: 2, От метро: 520, Восточный, нет, Наименьшее кол-во этажей: 16, Наибольшее кол-во этажей: 16, Сокольники, Кол-во помещений: 255, Кол-во нежилых помещений: 132, Год ввода в эксплуатацию: 1977, 3-комн, Кол-во жилых помещений: 123, Не присвоен, дом 1, да, да, да, да, да, да, Отсутствует, Грузовых лифтов: 2, Год постройки: 1977, Егерская улица, 37.682871, 55.792888
Свяжитесь со мной на счет цены
10 дн.
T55S792888L37S682871T

На карте


Условия сделки

Источник


Старт продаж

Возможно заинтересует