Top.Mail.Ru

Живописная ул., д. 34, к. 1

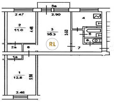
База каталог, Кол-во подъездов: 3, Отсутствует, I-511, Москва, Щукино, Площадь парковки: 0, Пассажирский лифт: 0, От метро: 2310, Северо-Западный, нет, Наименьшее кол-во этажей: 5, Наибольшее кол-во этажей: 5, Щукинская, Кол-во помещений: 58, Кол-во нежилых помещений: 0, Год ввода в эксплуатацию: 1960, 3-комн, Кол-во жилых помещений: 58, Не присвоен, дом 34, корпус 1, нет, да, да, нет, нет, нет, Имеется, Грузовых лифтов: 0, Год постройки: 1960, Живописная улица, 37.455049, 55.793682
Свяжитесь со мной на счет цены
10 дн.
T55S793682L37S455049T

На карте


Условия сделки

Источник


Старт продаж

Возможно заинтересует