Top.Mail.Ru

Живописная ул., д. 36, к. 2

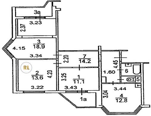
База каталог, Кол-во подъездов: 2, Отсутствует, П-44T, Москва, Щукино, Площадь парковки: 0, Пассажирский лифт: 2, От метро: 2120, Северо-Западный, нет, Наименьшее кол-во этажей: 17, Наибольшее кол-во этажей: 17, Щукинская, Кол-во помещений: 135, Кол-во нежилых помещений: 0, Год ввода в эксплуатацию: 2000, 3-комн, Кол-во жилых помещений: 135, Не присвоен, дом 36, корпус 2, нет, да, да, нет, нет, нет, Отсутствует, Грузовых лифтов: 2, Год постройки: 2000, Живописная улица, 37.457016, 55.794234
Свяжитесь со мной на счет цены
10 дн.
T55S794234L37S457016T

На карте


Условия сделки

Источник


Старт продаж

Возможно заинтересует