Top.Mail.Ru

Измайловская площадь, д. 13А

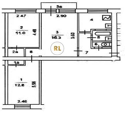
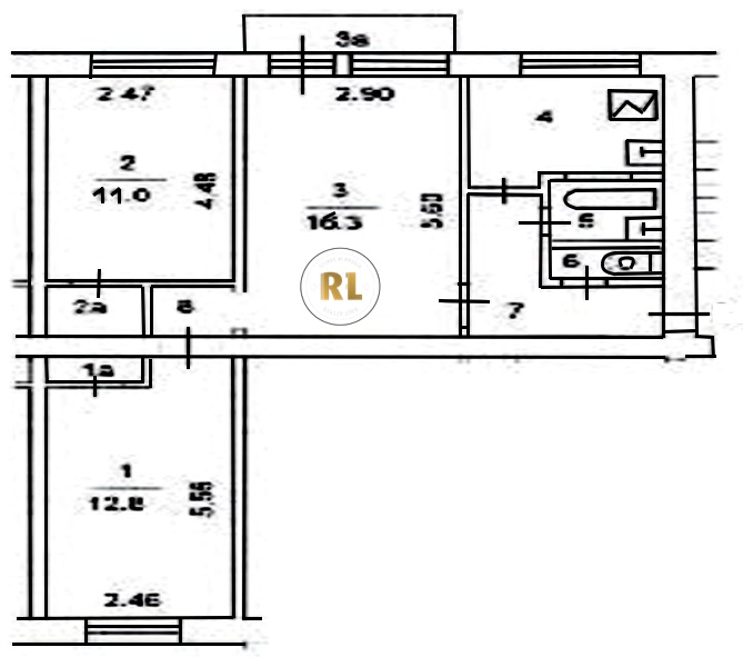
База каталог, Кол-во подъездов: 3, I-511, Москва, Измайлово, Пассажирский лифт: 0, От метро: 1000, Восточный, да, Наименьшее кол-во этажей: 5, Наибольшее кол-во этажей: 5, Измайловская, Кол-во помещений: 60, Кол-во нежилых помещений: 0, Год ввода в эксплуатацию: 1964, 3-комн, Кол-во жилых помещений: 60, D, дом 13А, нет, да, да, да, да, да, Грузовых лифтов: 0, Год постройки: 1964, Измайловская площадь, 37.773780, 55.794234
Свяжитесь со мной на счет цены
10 дн.
T55S794234L37S773780T

На карте


Условия сделки

Источник


Старт продаж

Возможно заинтересует