Top.Mail.Ru

Живописная ул., д. 36, к. 1

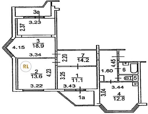
База каталог, Кол-во подъездов: 2, Отсутствует, П-44T, Москва, Щукино, Площадь парковки: 0, Пассажирский лифт: 2, От метро: 2200, Северо-Западный, нет, Наименьшее кол-во этажей: 12, Наибольшее кол-во этажей: 12, Щукинская, Кол-во помещений: 95, Кол-во нежилых помещений: 0, Год ввода в эксплуатацию: 2000, 3-комн, Кол-во жилых помещений: 95, Не присвоен, дом 36, корпус 1, нет, да, да, нет, нет, нет, Имеется, Грузовых лифтов: 2, Год постройки: 2000, Живописная улица, 37.455552, 55.794244
Свяжитесь со мной на счет цены
10 дн.
T55S794244L37S455552T

На карте


Условия сделки

Источник


Старт продаж

Возможно заинтересует