Top.Mail.Ru

Измайловская площадь, д. 11

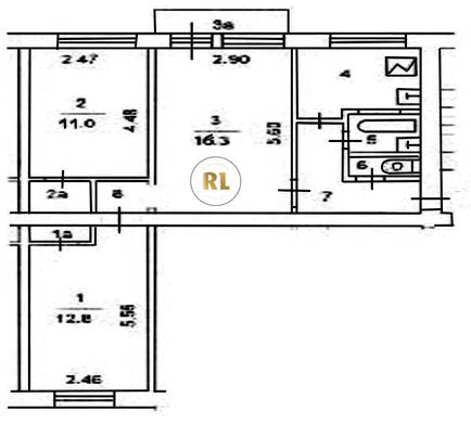
База каталог, Кол-во подъездов: 4, I-511, Москва, Измайлово, Пассажирский лифт: 0, От метро: 890, Восточный, да, Наименьшее кол-во этажей: 5, Наибольшее кол-во этажей: 5, Измайловская, Кол-во помещений: 74, Кол-во нежилых помещений: 2, Год ввода в эксплуатацию: 1958, 3-комн, Кол-во жилых помещений: 72, D, дом 11, нет, да, да, да, да, да, Грузовых лифтов: 0, Год постройки: 1958, Измайловская площадь, 37.774787, 55.794381
Свяжитесь со мной на счет цены
10 дн.
T55S794381L37S774787T

На карте


Условия сделки

Источник


Старт продаж

Возможно заинтересует