Top.Mail.Ru

4-я Парковая ул., д. 28

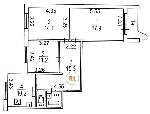
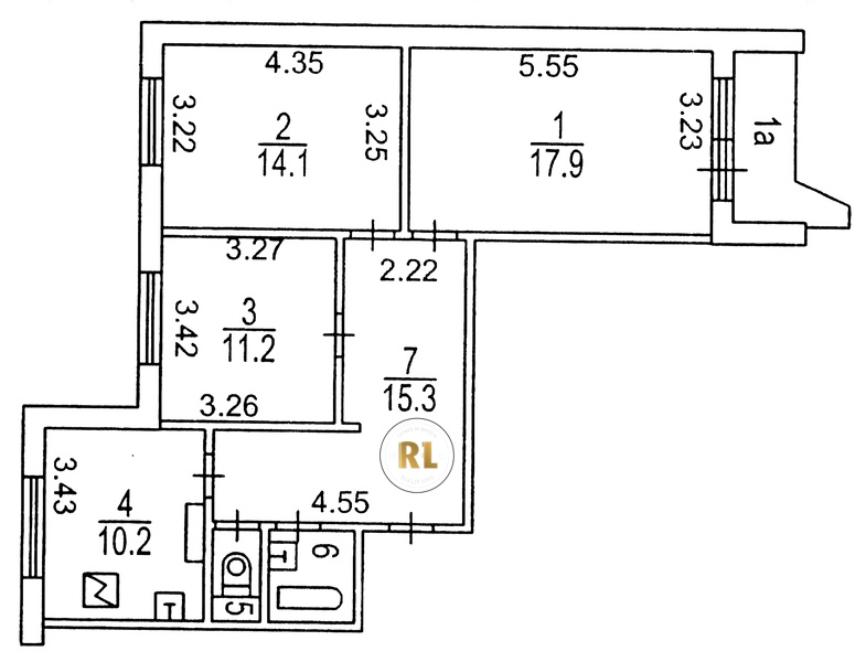
База каталог, Кол-во подъездов: 3, Отсутствует, П-44/16, Москва, Измайлово, Площадь парковки: 0, Пассажирский лифт: 3, От метро: 990, Восточный, нет, Наименьшее кол-во этажей: 1, Наибольшее кол-во этажей: 17, Первомайская, Кол-во помещений: 203, Кол-во нежилых помещений: 0, Год ввода в эксплуатацию: 1983, 3-комн, Кол-во жилых помещений: 203, Не присвоен, дом 28, нет, да, да, да, да, да, Отсутствует, Грузовых лифтов: 3, Год постройки: 1982, 4-я Парковая улица, 37.786222, 55.795433
Свяжитесь со мной на счет цены
10 дн.
T55S795433L37S786222T

На карте


Условия сделки

Источник


Старт продаж

Возможно заинтересует