Top.Mail.Ru

Средняя Первомайская ул., д. 13

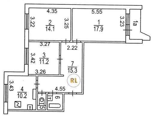
База каталог, Кол-во подъездов: 3, П-44, Москва, Восточное Измайлово, Площадь парковки: 0, Пассажирский лифт: 3, От метро: 620, Восточный, нет, Наименьшее кол-во этажей: 17, Наибольшее кол-во этажей: 17, Первомайская, Кол-во помещений: 203, Кол-во нежилых помещений: 0, Год ввода в эксплуатацию: 1989, 3-комн, Кол-во жилых помещений: 203, Не присвоен, дом 13, нет, да, да, да, да, да, Имеется, Грузовых лифтов: 3, Год постройки: 1989, Средняя Первомайская улица, 37.807907, 55.795540
Свяжитесь со мной на счет цены
10 дн.
T55S795540L37S807907T

На карте


Условия сделки

Источник


Старт продаж

Возможно заинтересует