Top.Mail.Ru

Никитинская ул., д. 1, к. 1

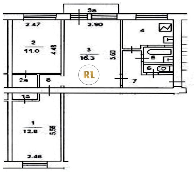
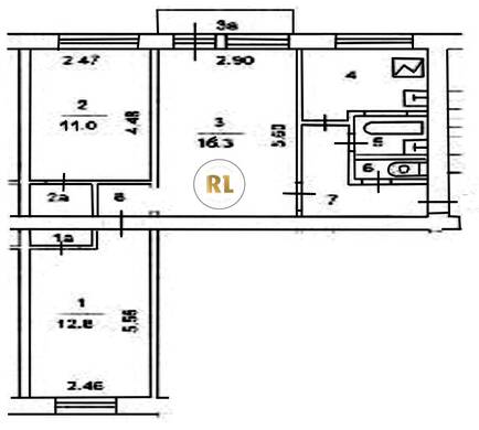
База каталог, Кол-во подъездов: 3, I-511, Москва, Измайлово, Пассажирский лифт: 0, От метро: 1020, Восточный, да, Наименьшее кол-во этажей: 5, Наибольшее кол-во этажей: 5, Измайловская, Кол-во помещений: 63, Кол-во нежилых помещений: 3, Год ввода в эксплуатацию: 1961, 3-комн, Кол-во жилых помещений: 60, D, дом 1, корпус 1, нет, да, да, да, да, да, Грузовых лифтов: 0, Год постройки: 1961, Никитинская улица, 37.774796, 55.795656
Свяжитесь со мной на счет цены
10 дн.
T55S795656L37S774796T

На карте


Условия сделки

Источник


Старт продаж

Возможно заинтересует